Case Study - La Casa - High-End Residential Refurbishment
Post Contract support for a valued client. Managing all cost-related works throughout RIBA stage 5 of a high-end refurbishment project.
- Client
- Private Residential Refurbishment Client
- Year
- RIBA Stages
- 5

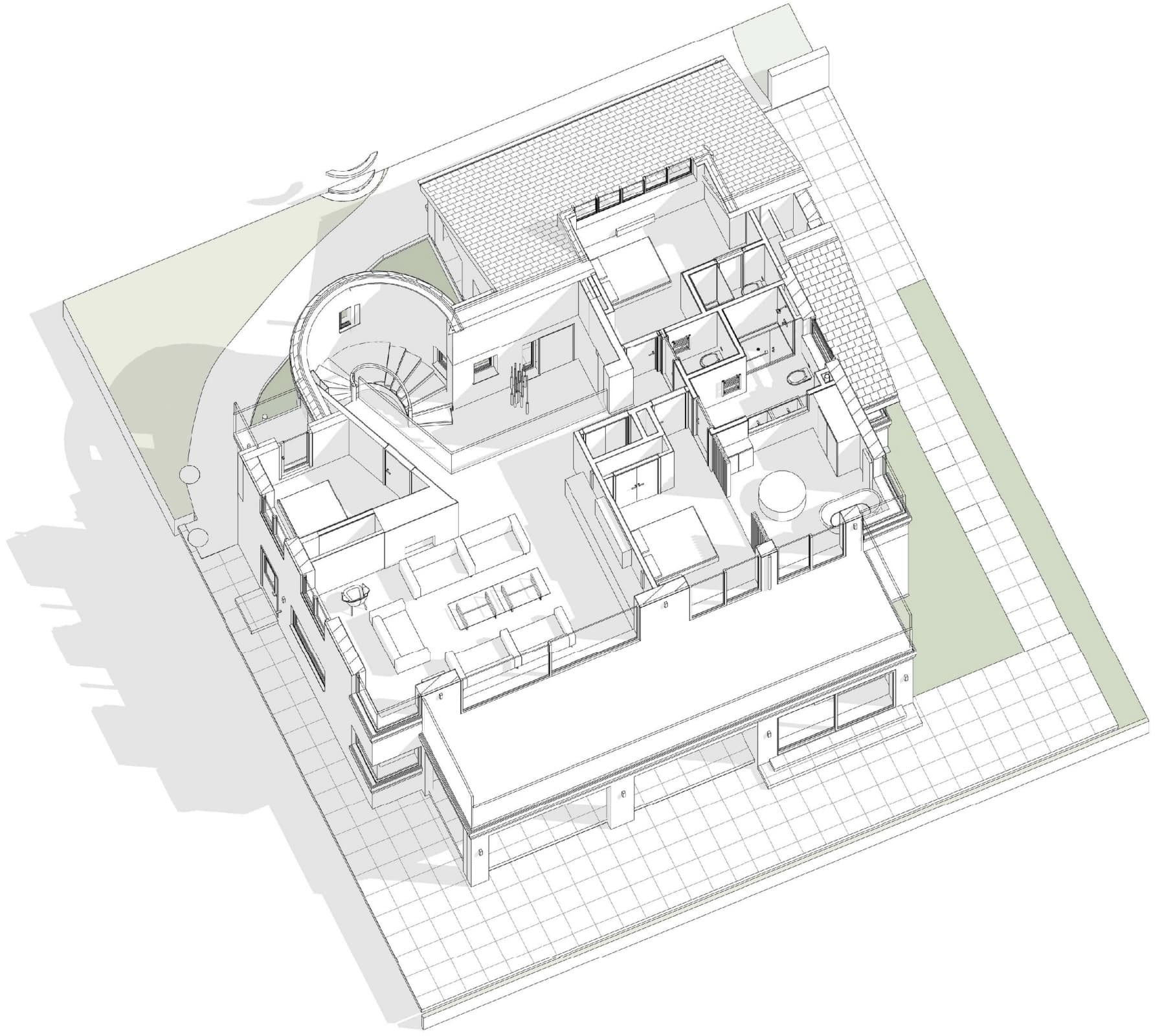
Overview
After providing cost support for this client during previous employment, Richmor were awarded the following phase of work. Richmor are managing all cost elements through to completion and final account, which is anticipated for Spring 2026.
Services being provided are cost analysis, value engineering, payment application review and certification, variation management and contract support. This project boasts a high-end finish in a desired location with views of the sea, which we have no doubt will look amazing once completed.
Services provided
- Cost Analysis
- Value Engineering
- Payment Application Review and Certification
- Variation Management
- Contract Support
